House 3002
George Contemporary Residential Architecture
Project Overview & Context
House 3002 in Fancourt, George applies a modern minimalist approach within the estate language. Large sliding glass panels open the living areas to a covered stoep, timber deck and lap pool with long views to the Outeniqua mountains. Calm, ordered interiors provide a neutral, finely detailed backdrop for a pristine contemporary art collection.
Project Overview & Context
House 3002 in Fancourt, George applies a modern minimalist approach within the estate language. Large sliding glass panels open the living areas to a covered stoep, timber deck and lap pool with long views to the Outeniqua mountains. Calm, ordered interiors provide a neutral, finely detailed backdrop for a pristine contemporary art collection.
Architecture, Plan and Light
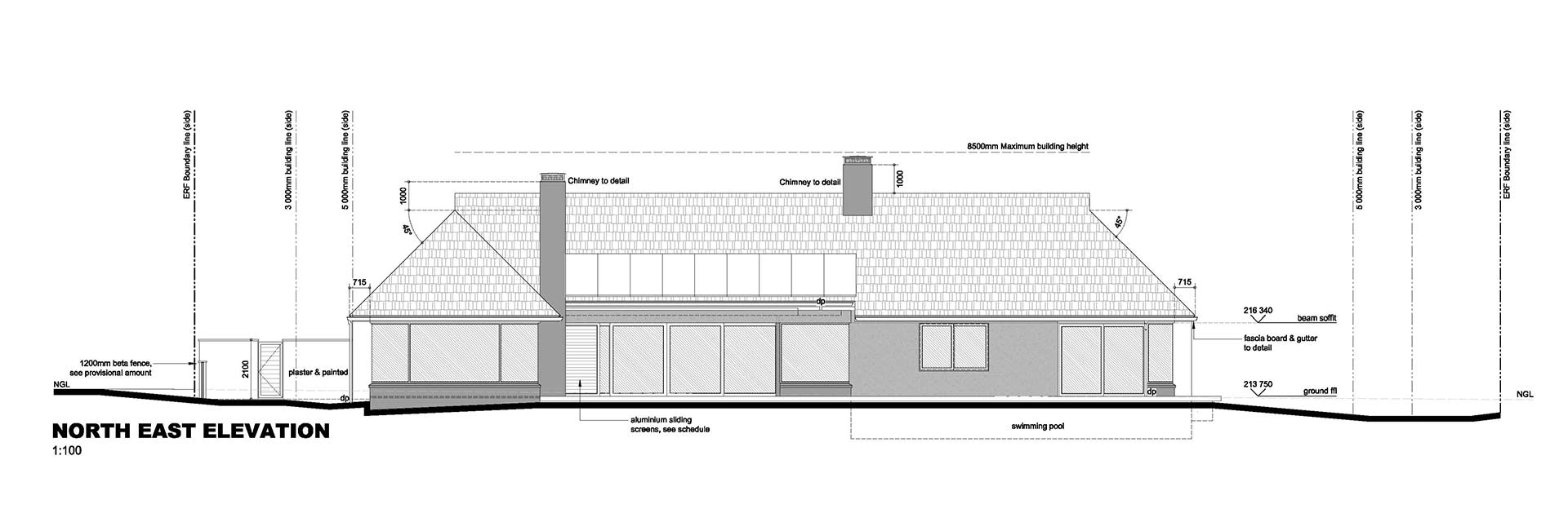
A long, low composition anchors the house to the site. Full height sliding panels line the living spaces and a deep slab canopy forms the stoep, while discreet rooflights bring soft top light to the terrace and interiors. Inside, a timber slatted screen shapes the arrival sequence and frames views to the garden and pool. The kitchen reads as a single minimal volume so that light, landscape and art remain the focus. Read more about our Architecture services.
Material Palette and Rooms
Finishes are restrained and tactile: plastered masonry, dark aluminium glazing, timber flooring and a stone toned terrace deck set flush with the interior levels. Private rooms continue the quiet language with generous glazing to the garden, layered curtains for light control and a spa like master bathroom with a freestanding bath, walk in shower and diffused daylight for privacy.
Architecture, Plan and Light
A long, low composition anchors the house to the site. Full height sliding panels line the living spaces and a deep slab canopy forms the stoep, while discreet rooflights bring soft top light to the terrace and interiors. Inside, a timber slatted screen shapes the arrival sequence and frames views to the garden and pool. The kitchen reads as a single minimal volume so that light, landscape and art remain the focus.
Material Palette and Rooms
A long, low composition anchors the house to the site. Full height sliding panels line the living spaces and a deep slab canopy forms the stoep, while discreet rooflights bring soft top light to the terrace and interiors. Inside, a timber slatted screen shapes the arrival sequence and frames views to the garden and pool. The kitchen reads as a single minimal volume so that light, landscape and art remain the focus. Read more about our Architecture services.
FAQ
Where is House 3002 located?
Within the Fancourt estate in George, on South Africa’s Garden Route.
What defines the architectural concept?
A minimal, linear plan with large sliding openings to a covered stoep, timber deck and lap pool, prioritising light, views and effortless indoor to outdoor living.
How does the interior support an art collection?
By using a neutral, finely detailed palette and uncluttered surfaces so artworks read clearly in living spaces and along circulation routes.
What are the key material choices?
Plastered masonry, dark aluminium frames, timber floors and a stone toned terrace, paired with simple, durable fittings that age well in the coastal climate.
Frequently Asked Questions
Where is House 3002 located?
Within the Fancourt estate in George, on South Africa’s Garden Route.
What defines the architectural concept?
A minimal, linear plan with large sliding openings to a covered stoep, timber deck and lap pool, prioritising light, views and effortless indoor to outdoor living.
How does the interior support an art collection?
By using a neutral, finely detailed palette and uncluttered surfaces so artworks read clearly in living spaces and along circulation routes.
What are the key material choices?
Plastered masonry, dark aluminium frames, timber floors and a stone toned terrace, paired with simple, durable fittings that age well in the coastal climate.












