House 1418
Southern Cape Coastal Residence
Project Overview & Context
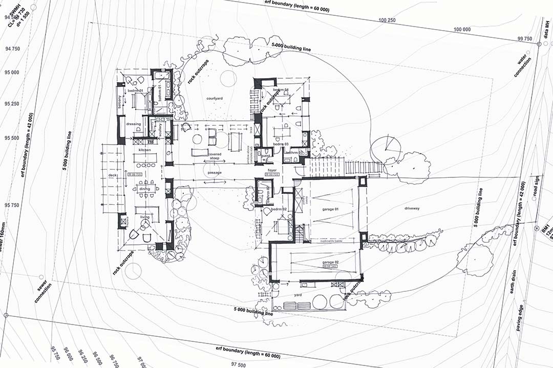
House 1418 is a Southern Cape coastal residence shaped by thorough site analysis and the estate guidelines. A large central courtyard anchors the plan and creates a wind-free outdoor room, while a glass-walled corridor links the home’s two primary wings. Inside, spaces are composed to frame long coastal views, and the surrounds are rehabilitated as a natural garden to restore the site’s indigenous character.
Project Overview & Context
House 1418 is a Southern Cape coastal residence shaped by thorough site analysis and the estate guidelines. A large central courtyard anchors the plan and creates a wind-free outdoor room, while a glass-walled corridor links the home’s two primary wings. Inside, spaces are composed to frame long coastal views, and the surrounds are rehabilitated as a natural garden to restore the site’s indigenous character.
Plan, Circulation & Light
Organised around the centralised courtyard, every major room has a calm outdoor counterpart. The fully glazed corridor acts as a transparent gallery between wings, keeping sightlines open to the courtyard and landscape. Generous sliders extend living, dining and kitchen areas to covered stoeps and decks—balancing sheltered family life with expansive Southern Cape vistas.
Materials & Landscape Integration
A restrained palette – plastered masonry, dark aluminium glazing, timber floors and exposed concrete elements keep attention on light, texture and setting. The rehabilitated natural garden uses indigenous, low-water planting with stepping paths through fynbos beds, binding the residence to its coastal environment and stabilising the site.
Plan, Circulation & Light
Organised around the centralised courtyard, every major room has a calm outdoor counterpart. The fully glazed corridor acts as a transparent gallery between wings, keeping sightlines open to the courtyard and landscape. Generous sliders extend living, dining and kitchen areas to covered stoeps and decks—balancing sheltered family life with expansive Southern Cape vistas.
Materials & Landscape Integration
A restrained palette – plastered masonry, dark aluminium glazing, timber floors and exposed concrete elements keep attention on light, texture and setting. The rehabilitated natural garden uses indigenous, low-water planting with stepping paths through fynbos beds, binding the residence to its coastal environment and stabilising the site.
FAQ
What primarily guided the design?
A detailed site analysis together with estate guidelines, informing orientation, massing and materials.
How is wind managed on this site?
The central courtyard creates a sheltered, wind-free outdoor space usable throughout the year.
How are the two parts of the residence connected?
A glass-walled corridor links the wings, maintaining continuous visual connection to the courtyard and landscape.
What defines the landscape approach?
A rehabilitated natural garden of indigenous species that complements the architecture and supports low water use.
Frequently Asked Questions
What primarily guided the design?
A detailed site analysis together with estate guidelines, informing orientation, massing and materials.
How is wind managed on this site?
The central courtyard creates a sheltered, wind-free outdoor space usable throughout the year.
How are the two parts of the residence connected?
A glass-walled corridor links the wings, maintaining continuous visual connection to the courtyard and landscape.
What defines the landscape approach?
A rehabilitated natural garden of indigenous species that complements the architecture and supports low water use.












