House 376.2

Bushveld Architecture, Gondwana Private Nature Reserve

House 376.2

Project Overview & Context

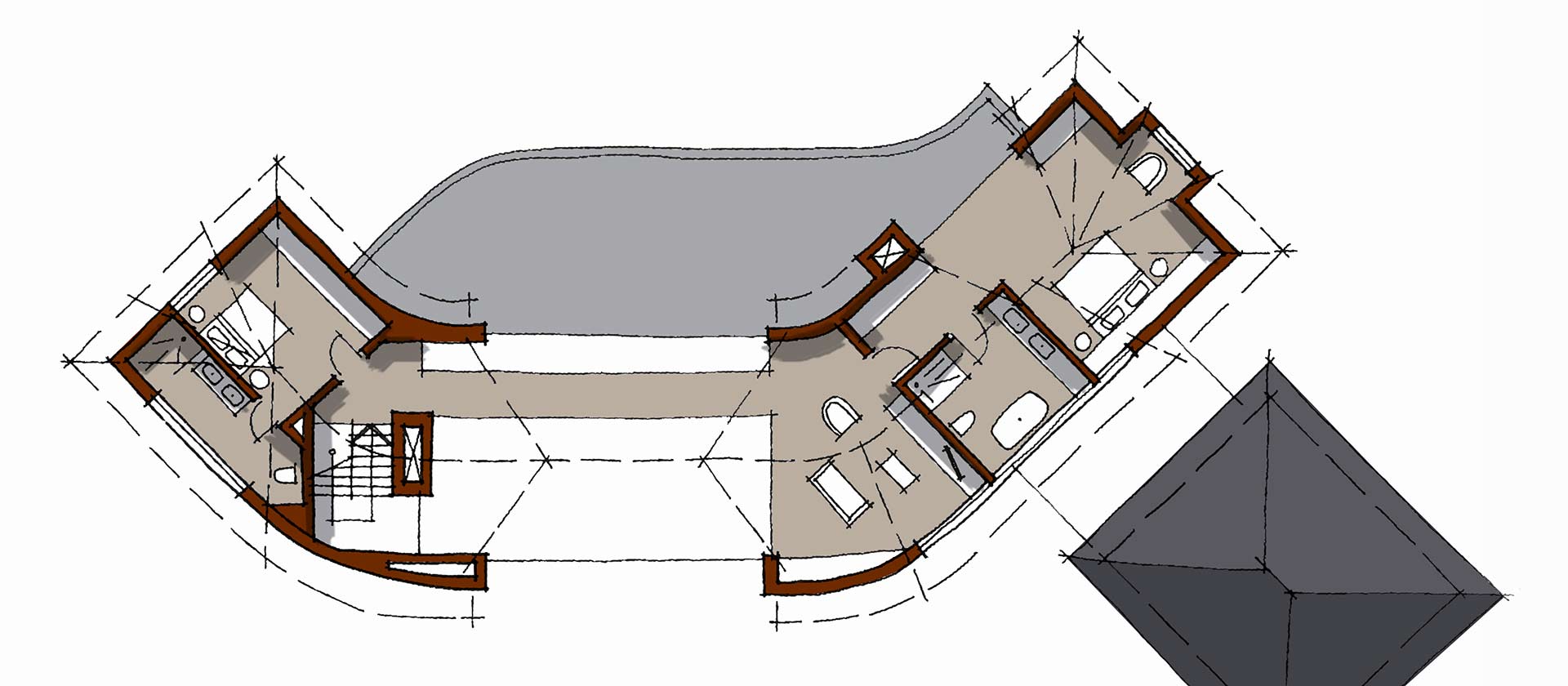
Conceived for wide-open views and easy living in the bush, House 376.2 is organised around a double-volume living pavilion that opens on both the front and the back, creating a clear through-view across the landscape. A contemporary thatched roof with crafted curved dormers shelters generous indooroutdoor space, while a mezzanine bridge and expansive glazing keep the interior light, social and connected to nature.

Project Overview & Context

Conceived for wide-open views and easy living in the bush, House 376.2 is organised around a double-volume living pavilion that opens on both the front and the back, creating a clear through-view across the landscape. A contemporary thatched roof with crafted curved dormers shelters generous indooroutdoor space, while a mezzanine bridge and expansive glazing keep the interior light, social and connected to nature.

CloseRead More
Bushveld Architecture

Through-View Living Pavilion

Full-height sliding openings align living, dining and kitchen areas on a single axis, so you can see right through the house from sunrise to sunset. A deep, covered stoep on the view side (back) extends daily living outdoors, promotes cross-ventilation and provides a sheltered perch to watch weather and wildlife move across the reserve.

Craft, Material Palette & Environmental Fit

A handcrafted thatch roof with exposed timber rafters pairs with plastered masonry, steel and timber balustrades, and polished concrete floors. The curved rooflines and earth-toned finishes echo the surrounding hills and rock outcrops, helping the home sit quietly within the bushveld textures as a companion to the landscape rather than a statement object.

Through-View Living Pavilion

Full-height sliding openings align living, dining and kitchen areas on a single axis, so you can see right through the house from sunrise to sunset. A deep, covered stoep on the view side (back) extends daily living outdoors, promotes cross-ventilation and provides a sheltered perch to watch weather and wildlife move across the reserve.

Craft, Material Palette & Environmental Fit

A handcrafted thatch roof with exposed timber rafters pairs with plastered masonry, steel and timber balustrades, and polished concrete floors. The curved rooflines and earth-toned finishes echo the surrounding hills and rock outcrops, helping the home sit quietly within the bushveld textures as a companion to the landscape rather than a statement object.

FAQ

Where is House 376.2 located?

Within Gondwana Private Nature Reserve.

What is the homes standout feature?

A front-to-back opening living pavilion that frames uninterrupted views straight through the house.

How does the roof influence the design?

The thatched, curved roof creates a lofty interior with exposed rafters and dormers, adding warmth and craft.

How does the plan support bush living?

Large sliding doors, a generous covered stoep on the view side, and robust finishes enable relaxed indoor–outdoor use year-round.

CloseRead More

Frequently Asked Questions

Where is House 376.2 located?

Within Gondwana Private Nature Reserve.

What is the home’s standout feature?

A front-to-back opening living pavilion that frames uninterrupted views straight through the house.

How does the roof influence the design?

The thatched, curved roof creates a lofty interior with exposed rafters and dormers, adding warmth and craft.

How does the plan support bush living?

Large sliding doors, a generous covered stoep on the view side, and robust finishes enable relaxed indoor–outdoor use year-round.

CloseRead More

Privacy Preference Center